Добро пожаловать на http://vipplan.ru

Випплан Томск - это тысячи проектов домов в нашем каталоге!

Вы всегда сможете найти для себя проект дома вашей мечты! Даже если этого не случилось, мы готовы в любую минуту предложить проект индивидуального дома.

Забыли пароль?
Вы еще не регистрировались?

Перейдите по ссылке ниже на страницу регистрации.

Регистрация...

Внимание!!!

В проектную документацию могут быть внесены изменения любой сложности, в соответствии в Вашими пожеланиями!

Полезные статьи

Сборные фундаменты

В наше время все большую популярность при строительстве дома приобретают сборные бетонные и железобетонные блоки. Их использование значительно сокращает время работ и снижает их трудоемкость....

Свайно-ростверковый, буронабивной фундамент

Для объединения свай в общий фундамент устанавливают бетонные ростверки (железобетонные плиты). Устройство ростверка зависит от расположения, вида свай и конструкции здания. Ростверки могут быть монолитными, сборными или сборно-монолитными, также возможны безростверковые решения. ...

Проекты домов и коттеджей > Каталог проектов домов > Проект двухэтажного дома с гаражом и балконом Vg2304

Проект двухэтажного дома с гаражом и балконом Vg2304

Проект двухэтажного дома с гаражом и балконом
Зарегистрируйтесь

Проект № Vg2304


Техническое описание
Общая площадь: 162.74 м2
Жилая площадь: 94.98 м2
Высота здания: 8.95 м
Размеры дома: 12.68м×11.78м
Кол-во комнат: 6
Цокольный этаж: нет
Гараж: нет
Мансарда: нет

Kонструкция
Фундамент: Монолитная ж/б плита
Перекрытия: Монолитные перекрытия
Материал стен: Газобетон

Архитектурный раздел
Конструктивный раздел
Инженерный раздел
АР+КР - 56 000 (Со скидкой 20%)
АР+КР+ИР - 113 050 (Со скидкой 50%)
Модель проекта индивидуального двухэтажного жилого дома с размерами здания 12,68 x 11,78 м. Наружная отделка здания - облицовочный кирпич. Фундамент - монолитная ж/б плита. Наружные стены - газобетонные блоки. Внутренние стены и перегородки - газобетонные блоки. Пол первого этажа - по по монолитному ж/б перекрытию. Межэтажное перекрытие - монолитное ж/б перекрытие. Крыша - многоскатная. Кровля - металлочерепица. Окна — металлопластиковые. Лестница - деревянная.
Генплан застройки участка / Паспорт проекта 7000 руб / 10000 руб
Инженерный раздел (полный) 57050 руб (81500 руб)
Смета на строительство 40750 руб
Теплотехнический расчет материалов стен Бесплатно
Стоимость проекта со незначительнми изменениями 65900 руб
Стоимость проекта со средними изменениями* 78200 руб
Стоимость проекта со значительными изменениями** 81400 руб

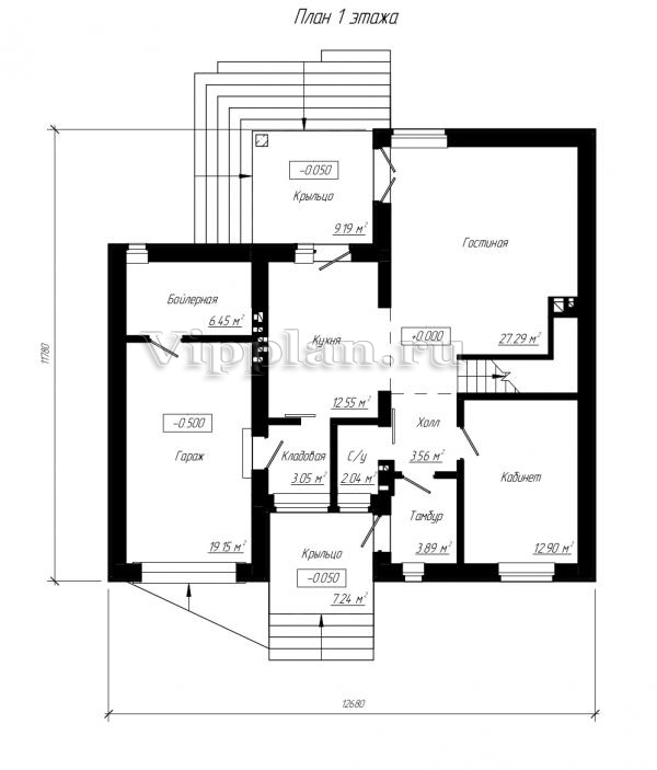
План первого этажа


Тамбур - 3,89 кв м
Холл - 3,56 кв м
Кабинет - 12,90 кв м
Гостиная - 27,29 кв м
Кухня - 12,55 кв м
С/у - 2,04 кв м
Кладовая - 3,05 кв м
Бойлерная - 6,45 кв м Гараж - 19,15 кв м

Проект двухэтажного дома с гаражом и балконом

Проект двухэтажного дома с гаражом и балконом

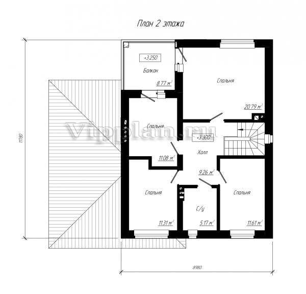
План второго этажа


Холл - 9,26 кв м
Спальня - 20,79 кв м
Спальня - 11,08 кв м
Спальня - 11,31 кв м
С/у - 5,17 кв м
Спальня - 11,61 кв м
Балкон — 2,63 кв м
Проект двухэтажного дома с гаражом и балконом Проект двухэтажного дома с гаражом и балконом Проект двухэтажного дома с гаражом и балконом Проект двухэтажного дома с гаражом и балконом

Модификации проектов

Внесение изменений и привязка к участку строительства

В любой из проектов от компании VIPplan - Томск по вашему желанию могут быть внесены изменения в материалы стен, материалы наружной отделки дома, а также будет произведена адаптация проекта под конкретный регион строительства (с учетом грунтов региона, геологических особенностей вашего участка и местных климатических условий) - БЕСПЛАТНО !!! (кроме проектов со скидкой и проектов наших партнеров).

Любой из проектов, размещенных на сайте tomsk.vipplan.ru мы можем выполнить из требуемых вам строительных материалов: ячеистый бетон (газобетон, пеноблок), керамоблок, кирпич, шлакоблок, бетонный блок, дерево (брус, клееный брус), каркасная технология (деревянный каркас, металлокаркас (ЛСТК)).

Фасад дома и его наружную отделку так же возможно выполнить с применением различных облицовочных материалов: структурной штукатурки, (с утеплителем и без), сайдингом (пластиковый или металлосайдинг), фиброплитами, кирпича.

 
6 Избранные
проекты

Доставка проектов по России: Москва (Московская область), Санкт-Петербург (Ленинградская область), Краснодар, Ростов-на-Дону, Ставрополь, Сочи, Волгоград, Новосибирск, Белгород, Брянск, Воронеж, Саратов, Хабаровск, Астрахань, Нальчик, Владикавказ, Екатеринбург, Тюмень, Самара, Нижний Новгород, Казань, Пермь, Уфа, Челябинск, Красноярск, Ханты-Мансийск, Иркутск, Курган, Оренбург, Омск, Томск, Барнаул, Новокузнецк, Кемерово, Абакан, Чита, Якутск, Южно-Сахалинск, Петропавловск-Камчатский и страны ближнего зарубежья: Белоруссия, Украина, Казахстан