Добро пожаловать на http://vipplan.ru

Випплан Томск - это тысячи проектов домов в нашем каталоге!

Вы всегда сможете найти для себя проект дома вашей мечты! Даже если этого не случилось, мы готовы в любую минуту предложить проект индивидуального дома.

Забыли пароль?
Вы еще не регистрировались?

Перейдите по ссылке ниже на страницу регистрации.

Регистрация...

Внимание!!!

В проектную документацию могут быть внесены изменения любой сложности, в соответствии в Вашими пожеланиями!

Полезные статьи

Купить готовый проект дома или заказать индивидуальный?

Перед началом строительства дома возникает необходимость в проекте дома и тут встает вопрос: Купить готовый проект дома или заказать индивидуальный на заказ? Каждый из вариантов по своему хорош и имеет как свои плюсы так и минусы...

Виды фундаментов

Можно смело сказать, что самое главное качество фундамента - надежность. Фундамент дома бывает нескольких видов. Все они отличаются прочностью, технологией закладывания и областью использования. Запомните, экономить на фундаменте – плохая идея. Затраты на ремонт будут огромными, а зачастую в случае нарушения технологии закладки фундамента исправить ошибку будет невозможно....

Проекты домов и коттеджей > Каталог проектов домов > Одноэтажный дом с подвалом, террасой Vg2423

Одноэтажный дом с подвалом, террасой Vg2423

Одноэтажный дом с подвалом,  террасой
Зарегистрируйтесь

Проект № Vg2423


Техническое описание
Общая площадь: 191.66 м2
Жилая площадь: 87.05 м2
Высота здания: 7.47 м
Размеры дома: 18.3м×20.9м
Кол-во комнат: 5
Цокольный этаж: нет
Гараж: нет
Мансарда: нет

Kонструкция
Фундамент: ленточный монолитный ж/б
Перекрытия: сборные плиты перекрытия
Материал стен: Газобетон

Архитектурный раздел
Конструктивный раздел
АР+КР - 60 000 (Со скидкой 20%)
Модель проекта одноэтажного дома с подвалом размерами здания 18,3 x 20,9 м. Наружная отделка здания – облицовочный кирпич, штукатурка, камень. Фундамент – ленточный монолитный ж/б. Наружные стены – газобетонные блоки с отделкой. Внутренние стены - газобетонные блоки. Перегородки - пенобетонные блоки. Пол 1 этажа, чердачное перекрытие - сборные ж/б плиты. Крыша многоскатная. Кровля – битумная черепица. Окна — металлопластиковые.
Генплан застройки участка / Паспорт проекта 7000 руб / 10000 руб
Инженерный раздел (полный) 96000 руб
Смета на строительство 48000 руб
Теплотехнический расчет материалов стен Бесплатно
Стоимость проекта со незначительнми изменениями 70200 руб
Стоимость проекта со средними изменениями* 84600 руб
Стоимость проекта со значительными изменениями** 88400 руб

План цокольного этажа


Помещение — 17,5 м2

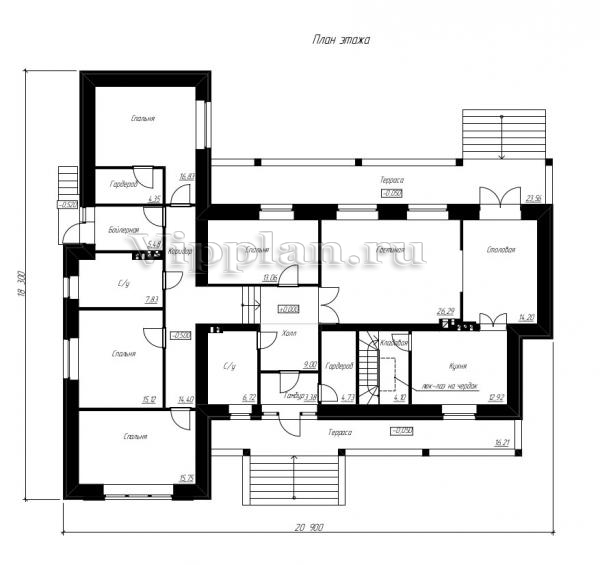
План первого этажа


Тамбур — 3,38 м2
Холл — 9 м2
Гостиная — 26,29 м2
Столовая — 14,2 м2
Кухня — 12,92 м2
Кладовая — 4,1 м2
Гардероб — 4,73 м2
С/у — 6,72 м2
Спальня — 13,06 м2
Коридор — 14,4 м2
Спальня — 15,75 м2
Спальня — 15,12 м2
Спальня — 16,83 м2
Гардероб — 4,35 м2
С/у — 7,83 м2
Бойлерная — 5,48 м2
Одноэтажный дом с подвалом,  террасой Одноэтажный дом с подвалом,  террасой Одноэтажный дом с подвалом,  террасой Одноэтажный дом с подвалом,  террасой

Модификации проектов

Внесение изменений и привязка к участку строительства

В любой из проектов от компании VIPplan - Томск по вашему желанию могут быть внесены изменения в материалы стен, материалы наружной отделки дома, а также будет произведена адаптация проекта под конкретный регион строительства (с учетом грунтов региона, геологических особенностей вашего участка и местных климатических условий) - БЕСПЛАТНО !!! (кроме проектов со скидкой и проектов наших партнеров).

Любой из проектов, размещенных на сайте tomsk.vipplan.ru мы можем выполнить из требуемых вам строительных материалов: ячеистый бетон (газобетон, пеноблок), керамоблок, кирпич, шлакоблок, бетонный блок, дерево (брус, клееный брус), каркасная технология (деревянный каркас, металлокаркас (ЛСТК)).

Фасад дома и его наружную отделку так же возможно выполнить с применением различных облицовочных материалов: структурной штукатурки, (с утеплителем и без), сайдингом (пластиковый или металлосайдинг), фиброплитами, кирпича.

 
6 Избранные
проекты

Доставка проектов по России: Москва (Московская область), Санкт-Петербург (Ленинградская область), Краснодар, Ростов-на-Дону, Ставрополь, Сочи, Волгоград, Новосибирск, Белгород, Брянск, Воронеж, Саратов, Хабаровск, Астрахань, Нальчик, Владикавказ, Екатеринбург, Тюмень, Самара, Нижний Новгород, Казань, Пермь, Уфа, Челябинск, Красноярск, Ханты-Мансийск, Иркутск, Курган, Оренбург, Омск, Томск, Барнаул, Новокузнецк, Кемерово, Абакан, Чита, Якутск, Южно-Сахалинск, Петропавловск-Камчатский и страны ближнего зарубежья: Белоруссия, Украина, Казахстан